
我们讨论了好多期风水,对于家居风水的作用其实现代的住宅跟古代住宅还是有很大差异! 今天想跟大家讨论下流传千年的风水学,古人的建筑如何应用。 中国建筑的最大特点是什么? 藏风聚气
▼

这跟中国的文化本质有关联性。 藏代表包容,孕育,博大等; 聚代表了团结,互助,精炼等。 而风水的藏风聚气的表现形式体现了三个字“ 曲则成”! 这意味着阳宅的建筑结构需要有回旋之气不能直进直出,在表现形式方面比较有代表性的有 合围式民 居、四合院等
▼

合围式民居主要是客家人, 特别是在广东一带,简称围屋。围屋里面往往住了整个族人或者某个家族。而在北方较为突出的可谓四合院。
无论是围屋还是四合院,主要体现了古人在 人与自然和谐相处! 择优而居的理念,同时也体现了藏风聚气,以及家和万事兴的家族观念。下面我们看看 四合院。
▼

最早的四合院起源于西周时期。 陕西岐山凤雏村遗址 影壁,大门,前堂,后室已经都具备了最早的功能区,也已经有了简单的划分。
下图是东汉画砖上的合院住宅。门口有望楼,庭院中有两只鹤,代表居住于此的人身份不凡。
▼

到北宋的《清明上河图》, 就已经可以看出院落非常规整,功能区划分也比较详细了,南北方的四合院差异于此时开始显现。
▼

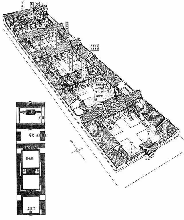
我们今天分析的是 北京四合院
▼

我们看四合院就像在看一个人, 正房 对应的是头脑,家庭的中枢, 一般是父母长辈居住。
▼

左右是 东西厢房, 是家里的儿子女儿居住的,父母的左右眼或者左右肩膀。
▼

鼻子则对应 内院 天井, 内院天井基本在整个建筑的中心位置。在人的面相中心位置,就是鼻子,而鼻子是显示一个人财富的重要五官。因此内院天井的气能否聚,恰恰反映了家族聚不聚财。
▼

另外,大门 对应嘴巴, 从大门进入的是什么样的气, 就像人吃的东西是 一样的。
▼

这并不是巧合, 古人对房子的分析,十分重视。《黄帝宅经》上说: “宅以形势为体,以泉水为血脉,以土地为皮肉,以草木为毛发,以舍屋为衣服,以门户为冠带。”
▼

进入了一个房子 就好像进入了一个人体内,要跟着这个人的气息走动。也可以说什么样的房子就会住什么样的人。所以大家有没有发现老式建筑基本都是四四方方,规规矩矩的,这也反映了古人的教育很期待家族出堂堂正正的人才。
四合院的风水是跟后天八卦图是对应的
▼

选择四合院以方形为最吉
且坐北朝南为最好的坐向
▼

一般大门不开在正南方
而是在东南方
▼

为什么不开在正南方? 因为房子坐北向南,门开在南,气太直了,不符合曲则成的核心。而把大门开在东南,从进门到内堂天井,需要走曲线这个曲线恰恰反映了 曲则成。
北京四合院也秉承这个理念,选择坐北向南,门开东南位。 东南位对应后天八卦中的“巽”卦, 代表文昌。 古人对于读书十分重视,东南恰恰反映了文昌星的能量。
▼ 
大门的等级也有非常多种, 最高等级是 王府大门, 皇家王室专用大门,占三间房到五间房的位置。
▼

最随意的是 随墙门, 在墙上直接开洞。而不同等级的门装饰和讲究都不一样,这个我们在以后的文章再来讨论。
▼

古人造房子有个讲究, 就是大门决不能直接相对, 两门相对为对骂, 自己家的大门也不能跟二门相对。所以啊,进了大门看到的是 影壁。 影壁是非常重要的面子工程,客人进了四合院,第一眼看到的就是影壁。
▼

所以有啥能体现主人的品位, 烘托自己家有钱的,都往影壁上堆,最有名的影壁就是 故宫的九龙壁 了。
▼

影壁在风水上的作用是 挡煞, 阻挡院外的鬼邪之气,所以设置影壁可以挡住它们的伤害。过了影壁,就来到了“大门不出,二门不迈”的二门,也就是垂花门。
垂花门 是内宅和外宅的分界, 特别之处是两侧柱子上的梁向前突出,梁头树立一根玄空的短柱。
▼

这个柱子叫做: 垂莲柱, 柱头向下。雕饰出莲瓣、串珠、花萼云或石榴头等形状,酷似一对含苞待放的花蕾。
▼

进了垂花门, 就来到内院了。
内院左右是东西 厢房
▼

东方是震卦 , 对应的是长子。 西方是兑卦 , 对应的是幼女。 所以一般东厢房住儿子,西厢房住女儿。
《西厢记》也就是崔莺莺,跑出西厢房到殿外玩耍才碰到的张生。
▼

其实还是有个隐藏的小心机, 东厢房比西厢房要高一点点。左青龙右白虎,东边代表的是青龙方,俗话说“不怕青龙高万丈,就怕白虎撑出头”。 青龙方主阳, 宜高不宜低, 宜喧不宜静。
如果左方低矮,预示家中男丁之位不正,特别是长子,容易失去权威。家中男丁亦难出头、少成就。青龙方相对高一些,表示多贵人相助,人气旺。

西面代表的是白虎方, 白虎方高于青龙方为“白虎撑出头”。 表示小人当道、小人欺主,家中多血光,女主人易患妇科病、婚姻失和。

正房 是整个住宅中等级最高的建筑
屋顶要高出厢房、耳房一大截
▼

正房是一个家的主要中心, 会客以及主人的卧室都在这里。正房在北方左右的西北东北有耳房, 对应后天八卦中三个宫位, 分别是坎宫、乾宫、艮宫。 对应的都是家中的男性,其实起到的所用是权力集中, 而南方对应的是 倒座房。
▼

我们再来看看四合院中的案台 , 作为整个建筑的案台,位置不能太高。
▼

一般作为客房或者下人居住的房屋 , 东南角为私塾,西南角为厕所,根据主人的身份地位,四合院也可以变出繁简不同的组合方式。
一进四合院

二进四合院

三进四合院

五进四合院

带花园的五进四合院

每一种四合院都 严格按照八卦对应的家庭成员来划分的 长幼有序,尊卑有别。 四合院让建筑参与到家庭礼制之中像一只无形的手聚拢,拿捏,分散,阻隔。在这么一个小的环境中,等级次序严格规整。
正房——厢房——倒座房, 越是重要的人越靠近正房,不重要的人远离,完成权力集中。
▼

其实四合院也是我们人文精神的一张脸 , 来看看甲骨文中的合。

代表的是向下张开的嘴巴
代表的是向上张开的嘴巴
有吃饭的意思, 也有围住的意思。
发展到篆文
合的上面
多了一个门 ![]()

寓意就更加明显了, 用一扇门把家庭成员“合”在一起, 合者“和”也。 现实生活中古时的建筑理念中更加注重的是 人与自然的和谐共处, 从而体现家族的藏风聚气。 而我们何尝不想如此, 藏风聚气,曲则成。
